Soklové cihly - hrubá stavba | Použité cihly - Porotherm 38 TS Profi a Porotherm 44 EKO+ Profi

Sokl a vazby soklů

Vnější nosné zdivo - sokl
Vnější nosné zdivo - sokl

Problematickým detailem jak z pohledu tepelně-technického, tak z pohledu statického, je napojení zdiva na základ či základovou desku a v případě vynechání věncovek i uložení na stropní desku.

Jedním z řešení soklového zdiva v systému Porotherm, která byla ověřena tepelně-technickými výpočty, je níže uvedený detail s použitím extrudovaného polystyrénu XPS. Tepelný izolant je výškově přetažený přes první vrstvu cihel vyzděnou na základu stavby. Tato první vrstva cihel však musí být minimálně o tloušťku XPS tenčí, aby byla ve fasádě zachována linie soklu s přesahem horní části fasády kvůli stékání/odkapu vody. Zbývající část stěny je na užší první vrstvě cihel uložena s jednostranným, případně nestejným oboustranným přesahem.

Nesymetrickým uložením s oboustranným přesahem dochází ke zmenšení excentricity zatížení průřezu a tím i k rovnoměrnějšímu rozdělení napětí v ložné spáře. Dochází tak ke zmenšení extrémního napětí na krajích průřezu a tím i zvýšení únosnosti, neboť rozhodující pro únosnost stěny je u soklů smykové napětí na rozhraní mezi spodní a horní cihlou – v případě překročení únosnosti by došlo k porušení (odlomení) horního přesahujícího cihelného bloku, což bylo ověřeno reálným chováním při statických zkouškách fragmentů zdiva s tímto uspořádáním soklové části.

V případě běžných staveb (definovaných dle ČSN EN 1996-3, Příloha A, odst, A1) lze předpokládat jako maximální hodnotu přesahu 1/6 tloušťky horního cihelného bloku. Způsob přesného výpočtu Eurokód 6 neuvádí.

O stejný problém se jedná v případě vynechání věncovek u stropů a použití tepelné izolace ztužujícího věnce ve vnějším líci zdiva. Rozhodující je opět smykové napětí, zde u cihelného bloku nejen nad deskou, ale i pod ní. Proto pro přesah cihel přes stropní desku s věncem platí stejná doporučení jako u soklů. V případě použití relativně tenkého obvodového zdiva pod dodatečné zateplení proto doporučujeme ukládat stropy na plnou tloušťku zdiva a případný požadavek na zvýšenou tepelnou ochranu v místě stropní desky řešit použitím kvalitnější tepelné izolace podél stropní desky.

Zděný sokl může mít i další funkci – chránit v době výstavby proti vodě stojící na základové či stropní desce po dešti či proti tajícímu sněhu. Za tímto účelem se pro založení stěn používají tzv. soklové cihly Porotherm TBS (TS, S) Profi vyvinuté jak pro vnější, tak pro vnitřní zdivo. Soklové cihly jsou broušené, ze spodní strany jsou na výšku cca 4 cm naimpregnovány speciálním přípravkem, který zamezuje nasáknutí vody do cihelného střepu, ale přitom nesnižuje přídržnost malty ani omítky. Broušené soklové cihly se dají použít i pro zdivo z nebroušených cihel. Způsob založení první vrstvy zdiva ze soklových cihel závisí na dále použité technologii zdění na zakládací maltu pro zdivo z broušených cihel, nebo na vápenocementovou, příp. cementovou maltu pro zdivo z nebroušených cihel. Toto řešení je z pohledu provádění velmi jednoduché, zcela bezpečné, finančně výhodné a trvanlivé.

Pro vnější stěny jsou k dispozici soklové cihly v tloušťkách 300, 380, 440 mm pouze ve variantě cihel plněných minerální vatou. Správné založení soklových cihel v rozích vnějších stěn pro dodržení vazby zdiva mezi první a druhou vrstvou cihel v kombinaci různých tlouštěk cihel je uvedeno dále v této části.

Impregnované cihly
Impregnované cihly

Pro vnitřní stěny jsou k dispozici impregnované cihly v tloušťkách nosných stěn 300 a 240 mm. Malta pro založení ani malta či pěna pro zdění nejsou součástí dodávky soklových cihel.

U cihel Porotherm T Profi se pro založení vnějších stěn používají tyto kombinace

 

 

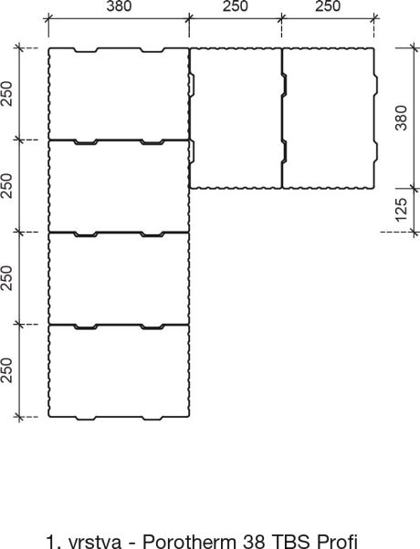
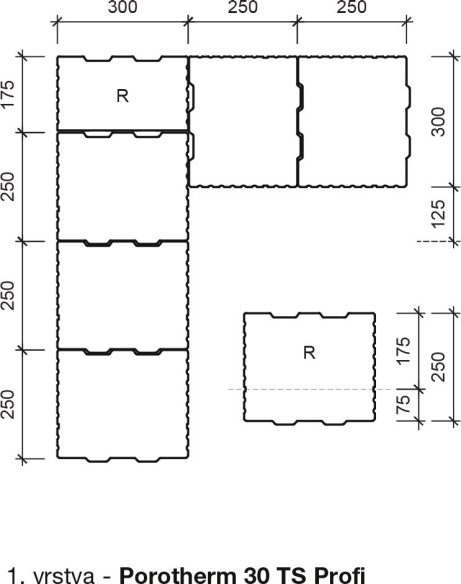
Vazby soklů

Vazba cihelných bloků mezi první a druhou vrstvou zdiva musí být dodržena i u odsazeného soklu. Následující půdorysná schémata ukazují, jak pro různé kombinace tlouštěk zdiva správně založit první vrstvu ze soklových cihel a jak na ní dále pokračovat s druhou vrstvou širších cihel. Další vrstvy už se řídí dnes již běžnými zásadami, v každém případě je potřebné v rozích, tam kde je to předepsáno, používat doplňkové tvary cihel, tzv. rohové a také koncové celé a poloviční cihly.

  • Pro podrobnější informace společnost Wienerberger s.r.o. vydala další tiskoviny

Tiskoviny můžete stáhnout z partnerské WIP zóny

Co je partnerská WIP zóna?

Tato webová platforma je tu pro podporu projekčních kanceláří a dalších odborníků ve stavebnictví. Jako naši partneři zde získáváte nejnovější informace o produktech, řešeních i novinkách ve společnosti Wienerberger s.r.o.

Kontakty